Accommodation
Rentals

Rentals for any Terrain.

Westland offers fully equipped workforce accommodations in a variety of models tailored to meet your project needs, including sleepers, lavatories, offices, command centres, and more. Our rental units are designed to provide comfort, efficiency, and functionality in remote and challenging environments.

With prompt delivery services across Alberta, British Columbia, Saskatchewan, and beyond, our team ensures your equipment and accommodations arrive quickly and conveniently.

Get a Quote.

Get a fast and reliable quote on rental equipment and accommodations tailored to your project’s needs across Western Canada.

Available Configurations

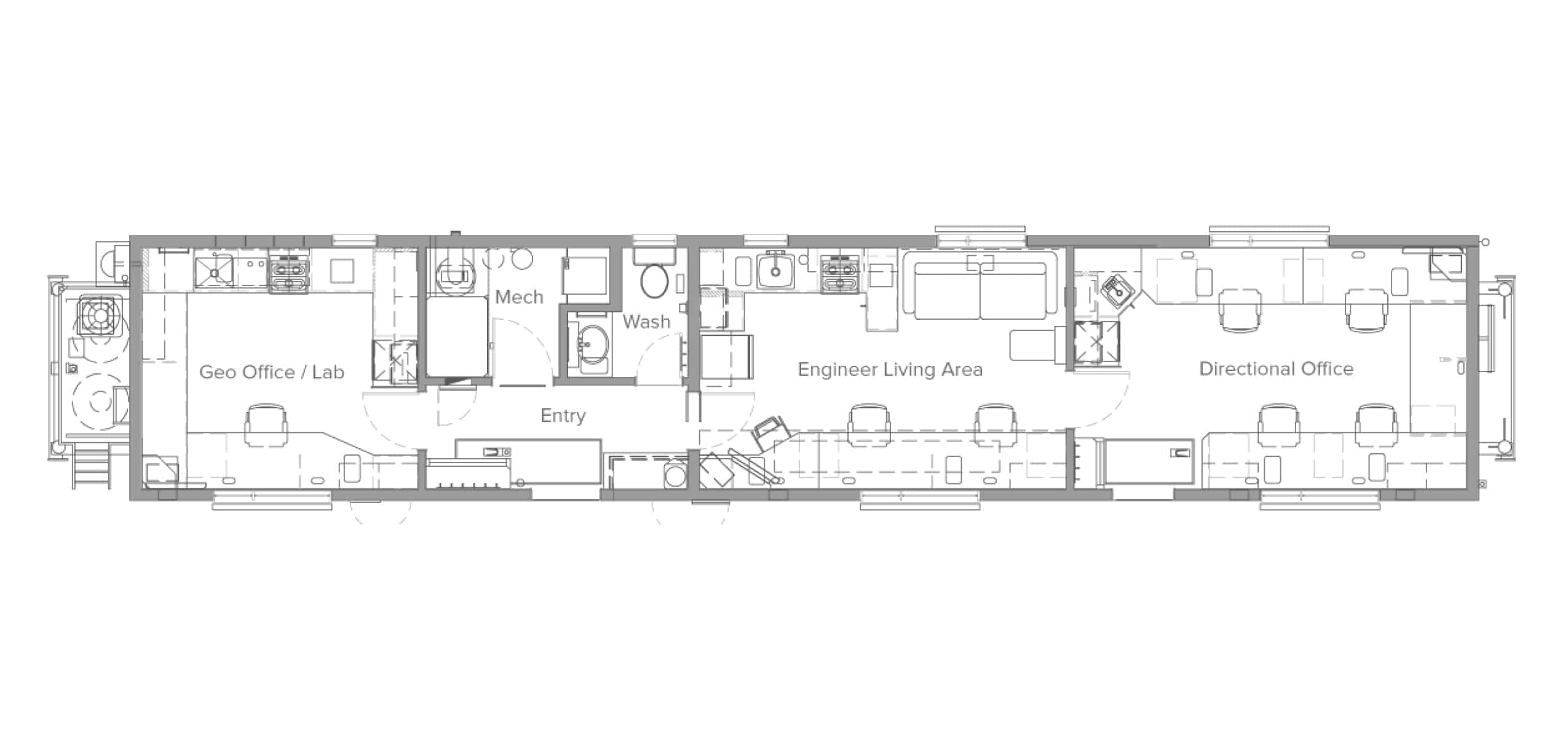
DRILLING COMMAND CENTRE RENTAL (14 X 60)

OPTION 1:

• Central Air
• Kitchen Stove
• Microwave Ovens
• Refrigerators
• Coffee Makers
• 400 Gallon Water Storage Tank
• Central Vacuum
• 32 inch LCD HD Televisions
• DVD Players

• Satellite Dish
• Satellite Receivers
• Stereo w/CD Player & mp3
• Water Cooler
• 2 x 400 L Propane Tank
• Geologist Stove with Fume Hood
• Geologist Sink with Drain Pans

OPTION 2:

• Central Air
• Kitchen Stove
• Microwave Ovens
• Refrigerators
• Coffee Makers
• 400 Gallon Water Storage Tank
• Central Vacuum
• 32 inch LCD HD Televisions
• DVD Players

• Satellite Dish
• Satellite Receivers
• Stereo w/CD Player and mp3
• Water Cooler
• 2 x 400 L Propane Tank
• Geologist Stove with Fume Hood
• Geologist Sink with Drain Pans

DRILLING COMMAND CENTRE RENTAL (12X 60)

OPTION 1:

• Central Air
• Kitchen Stove
• Microwave Ovens
• Refrigerators
• Coffee Makers
• 400 Gallon Water Storage Tank
• Central Vacuum
• 32 inch LCD HD Televisions
• DVD Players

• Satellite Dish
• Satellite Receivers
• Stereo w/CD Player and mp3
• Water Cooler
• 2 x 400 L Propane Tank
• Geologist Stove with Fume Hood
• Geologist Sink with Drain Pans

OPTION 2:

• Central Air
• Kitchen Stove
• Microwave Ovens
• Refrigerators
• Coffee Makers
• 400 Gallon Water Storage Tank
• Central Vacuum
• 32 inch LCD HD Televisions
• DVD Players

• Satellite Dish
• Satellite Receivers
• Stereo w/CD Player and mp3
• Water Cooler
• 2 x 400 L Propane Tank
• Geologist Stove with Fume Hood
• Geologist Sink with Drain Pans

28 WIDE DRILLING COMMAND CENTER

• Central Air
• Kitchen Stove Top with Oven
• Microwave Oven
• Refrigerators
• Coffee Makers
• 600 Gallon Water Storage Tank
• Central Vacuum
• Washer/Dryer
• 32 inch LCD Televisions

• 47 inch LCD Television in Common Area
• DVD Players
• Stereo
• Satellite
• 5 Offices (Including Geologist Room)
• 2 x 400 L Propane Tanks
• 2 Bathrooms
• Full Size Second Kitchen

3 MAN WET SLEEPER

• Central Air
• Kitchen Stove
• Microwave Ovens
• Refrigerators
• Coffee Makers
• 400 Gallon Water Storage Tank
• Central Vacuum
• 32 inch LCD HD Televisions
• DVD Players

• Satellite Dish
• Satellite Receivers
• Stereo w/CD Player and mp3
• Water Cooler
• 2 x 400 L Propane Tank
• Geologist Stove with Fume Hood
• Geologist Sink with Drain Pans

4 MAN DIRECTIONAL

• Central Air
• Common Kitchen and Work Area
• Microwave Oven
• Refrigerator
• Coffee Maker
• 400 Gallon Water Storage Tank
• Central Vacuum
• 32 inch LCD HD Televisions

• DVD Players
• Stereo w/CD Player, mp3 hook up
• Satellite Dish
• Satellite Receivers
• 2 x 400 L Propane Tank
• Water Cooler
• Bedrooms (4)

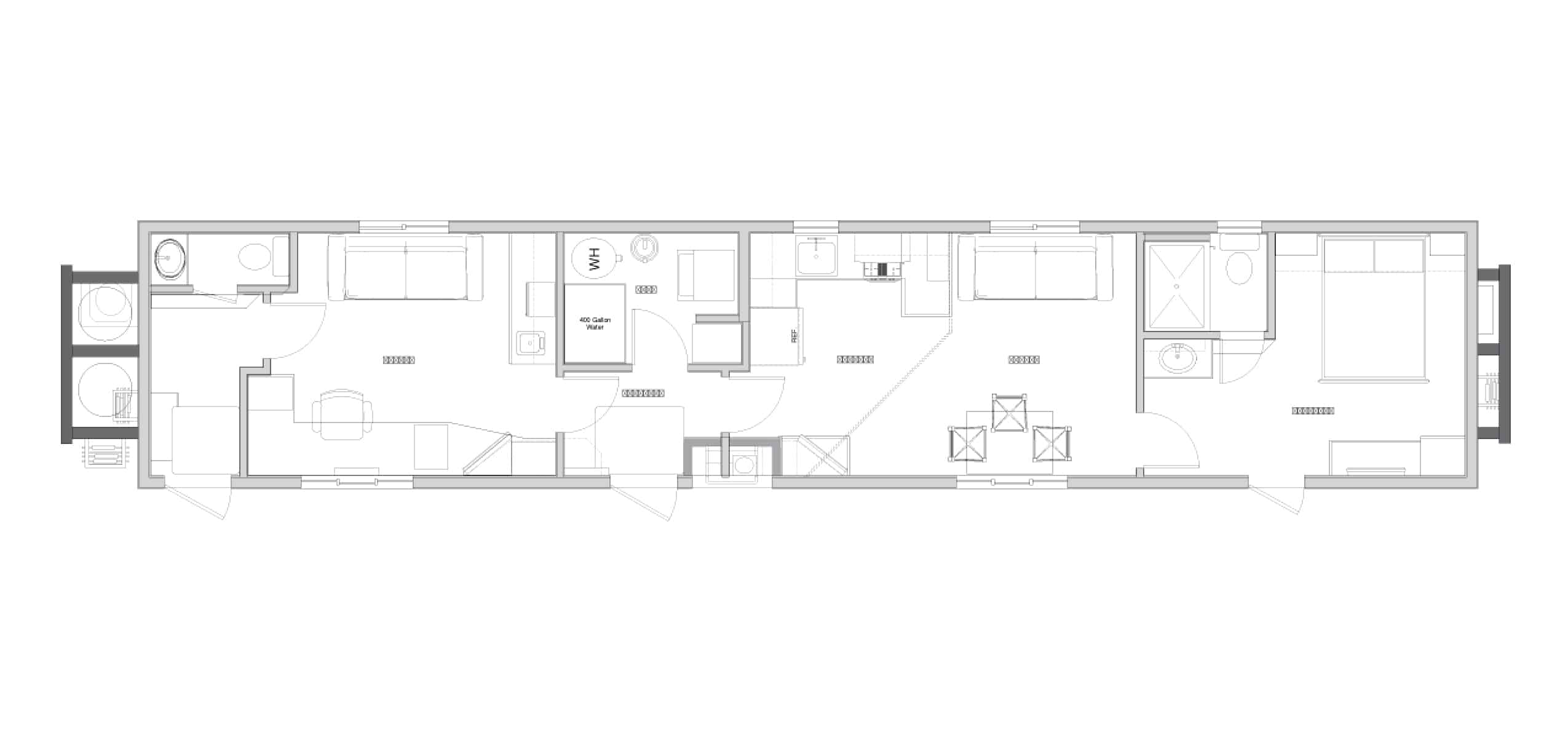
4 MAN WET SLEEPER (12 X 60)

• Microwave Oven (4)
• Refrigerators (4)
• Coffee Makers (4)
• 800 Gallon Water Storage Tank
• Central Vacuum
• Washer/Dryer
• 32 inch LCD HD Televisions (4)
• DVD Players (4)

• Satellite Dish Satellite Receivers (4)
• 2 x 400 L Propane Tank
• Forced Air Furnace
• Desk & Chair (4)
• Bathroom with Shower (4)

4 MAN WET SLEEPER W/KITCHEN (12 X 60)

• Kitchen Stove Top with Oven
• Microwave Oven
• Refrigerators (4)
• Coffee Makers (4)
• 800 Gallon Water Storage Tank
• Central Vacuum
• Washer/Dryer
• 32 inch LCD HD Televisions (4)

• DVD Players (4)
• Satellite Dish
• Satellite Receivers (4)
• 2 x 400 L Propane Tank
• Double – Sided Stainless Steel Sink
• Desk & Chair (4)
• Bathroom with Showers (4)
• Forced Air Furnace

4 MAN WET SLEEPER (14 X 60)

• Microwave Oven (4)
• Refrigerators (4)
• Coffee Makers (4)
• 800 Gallon Water Storage Tank
• Central Vacuum
• Washer/Dryer
• 32 inch LCD HD Televisions (4)
• DVD Players (4)

• Satellite Dish Satellite Receivers (4)
• 2 x 400 L Propane Tank
• Forced Air Furnace
• Desk & Chair (4)
• Bathroom with Shower (4)

ENG ENG GEO (45/45/10)

• Central Air
• Kitchen Stove Top with Oven
• Microwave Ovens
• Refrigerators
• 400 Gallon Water Storage Tank
• Central Vacuum Washer/Dryer
• 32 inch LCD HD Televisions
• DVD Players & Satellite

• Stereo w/CD Player and mp3
• Double-Sided Stainless
Steel Geologist Sink
• Geologist Stove with 3-Sided Vented Stainless Steel Hood
• BBQ
• 2 x 400 L Propane Tank.

ENGINEER / ENGINEER

• Central Air
• Kitchen Stove Top with Oven
• Microwave Oven
• Refrigerators
• Coffee Makers
• 400 Gallon Water Storage Tank
• Central Vacuum Washer/Dryer
• 32 inch LCD HD Televisions

• DVD Players
• Stereo w/CD Player, mp3 hook up
• Satellite Dish
• Satellite Receivers
• BBQ
• 2 x 400 L Propane Tank

ENGINEER / GEOLOGIST

• Central Air
• Kitchen Stove Top with Oven
• Microwave Oven
• Refrigerators
• 400 Gallon Water Storage
Tank
• Central Vacuum
• Washer/Dryer
• 32 inch LCD HD Televisions
• DVD Players

• Stereo w/CD Player and mp3
• Satellite
• BBQ
• 2 x 400 L Propane Tank
• Double-Sided Stainless
Steel Geologist SInk
• Geologist Stove with 3-Sided Vente

EXERCISE TRAILER

• Central Air
• Fitness Equipment
• Recreational Equipment
• 32 inch LCD HD Televisions
• Satellite Dish
• Satellite Receivers

FIRST AID TRAILER

• Central Air
• Kitchen Stove Top with Oven
• Microwave Oven
• Refrigerators
• Coffee Makers
• 400 Gallon Water Storage Tank
• Central Vacuum
• Washer/Dryer
• HD Televisions

• DVD Players
• Stereo w/CD Player, mp3 hook up
• Satellite Dish
• Satellite Receivers
• BBQ
• 2 x 400 L Propane Tank

GEOLOGIST LAB (12 X 26)

• Central Air
• Sample Door
• Sample Hanger Hooks
• Double-Sided Stainless Steel Sink with Drain Pans
• Geologist Stove with Fume Hood

LUNCHROOM

• Central Air
• Heat
• Large Lunchroom Common Area

OFFICE TRAILER (12 X 60)

• Central Air
• Heat
• 2 Private Offices
• Large Common Area
• Westland Rentals also offers a larger 24 x 60 office trailer option

OFFICE TRAILER (24 X 60)

• Central Air
• Heat
• 4 Private Offices
• Large Common Area (1440 sqft)
• Westland Rentals also offers a smaller 12 x 60 office trailer option

LAVATORIES

• Men’s Washroom: 4 Toilets, 4 Urinals and 3 Sinks
• Women’s Washroom: 2 Toilets and 2 Sinks
• Heavy Duty Skids
• Water-Save Features
• Self Contained Water System
• Self Contained Sewage System

• Large Water Heater
• Drains at the Back Side of Unit

SUPER SINGLE (ENGINEER EXCLUSIVE)

• Central Air
• Kitchen Stove Top with Oven
• Microwave Oven
• Full Size Refrigerator
• Small Under Counter Refrigerator
• Coffee Makers
• 400 Gallon Water Storage Tank
• Central Vacuum

• Washer/Dryer
• 32 inch LCD HD Televisions
• DVD Players
• Stereo w/CD Player and mp3
• Satellite
• BBQ
• 2 x 400 L Propane Tank
• Double-Sided Stainless Steel Sink

WET OFFICE (12 X 32)

• Central Air
• Kitchenette with Stove
• Full Size Refrigerator
• Coffee Maker
• 400 Gallon Water Storage
Tank
• Washer / Dryer
• 32 inch LCD HD Televisions
• DVD Player
• Stereo w/CD Player and mp3

• Satellite Dish
• Satellite Receiver
• 2 x 400 L Propane Tank

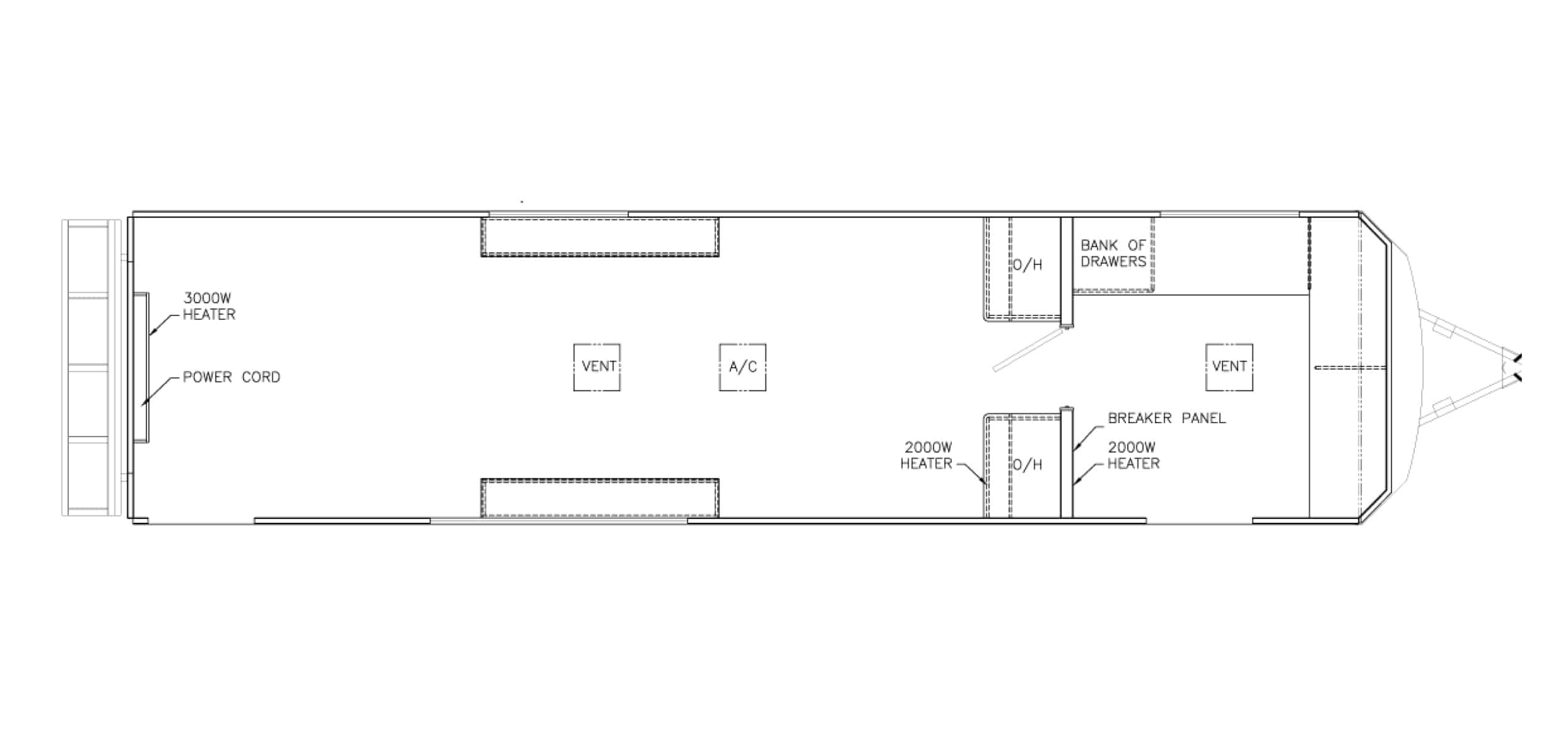
WHEELED SAFETY MEETING TRAILER

• Furnance
• Central Air
• Microwave Oven
• Refrigerator
• Flat Screen LED Television
• Stereo
• Satellite Dish
• Satellite Receiver
• Whiteboard & Meeting Tables
• Powered by 20 kW Light Tower/Generator
• 4 Prong 30’ Twist Lock

WHEELED LAVATORIES

• Men’s Washroom: 1 Toilet, 2 Urinals and 1 Sink, 1 Hand Dryer
• Women’s Washroom: 2 Toilets and 1 Sink, 1 Hand Dryer
• Wheeled Unit
• Water-Save Features
• Self Contained Water System

• Self Contained Sewage System
• Water Heater
• Drains at the Back of Unit
• These multi-functional portable units can be used year-round and are essenital. Hygenic demands are met while also providing a level of comfort.

WHEELED OFFICE TRAILER (8 X 23)

• Heat
• Microwave Oven
• Refrigerator
• Coffee Maker
• Satellite Dish
• Satellite Receiver
• Television

LAUNDRY CAR

• 6 Washers
• 6 Dryers
• 800 Gallon Water Storage Tank
• Folding & Sorting Tables

Delivery and Service

Westland provides reliable delivery and maintenance services to ensure your accommodation units are set up, operational, and well-maintained throughout your project.

Our team offers prompt delivery across Western Canada, ensuring your workforce housing, offices, and facilities arrive quickly and hassle-free. We ensure each unit is properly set up to operate safely and efficiently, as intended, so your team can focus on the job at hand. With ongoing maintenance support, we help keep your units in top condition, minimizing downtime and ensuring a safe, comfortable environment for your workforce.

Serving Western Canada

Proudly serving key industries in British Columbia, Alberta, and Saskatchewan, including energy, pipelines, agriculture, power transmission, mining, construction, infrastructure, environmental services, and municipal projects.

Get a Quote.

Get a fast and reliable quote on rental equipment and accommodations tailored to your project's needs across Western Canada.